
-
Architects: HENN, LRO GmbH & Co. KG Freie Architekten BDA
- Area: 3100 m²
- Year: 2024
-
Photographs:Mark Seelen | Seelen+

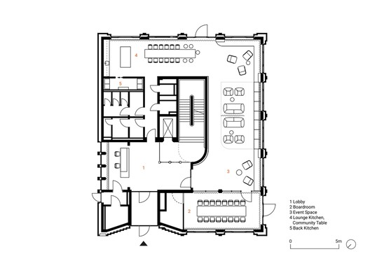
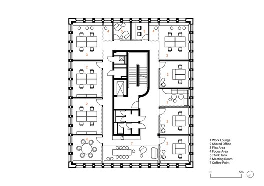
Text description provided by the architects. Bestsecret, an online members-only club for luxury fashion, adds an office in the center of the Bavarian capital to its new headquarters in the Munich area. HENN translated the company's identity as a platform for curated luxury brands into a corresponding interior design, creating a place that strengthens the brand's identity while providing a pleasant, modern work environment for about 125 employees.

















